malý modulový dom
exteriér
interiér
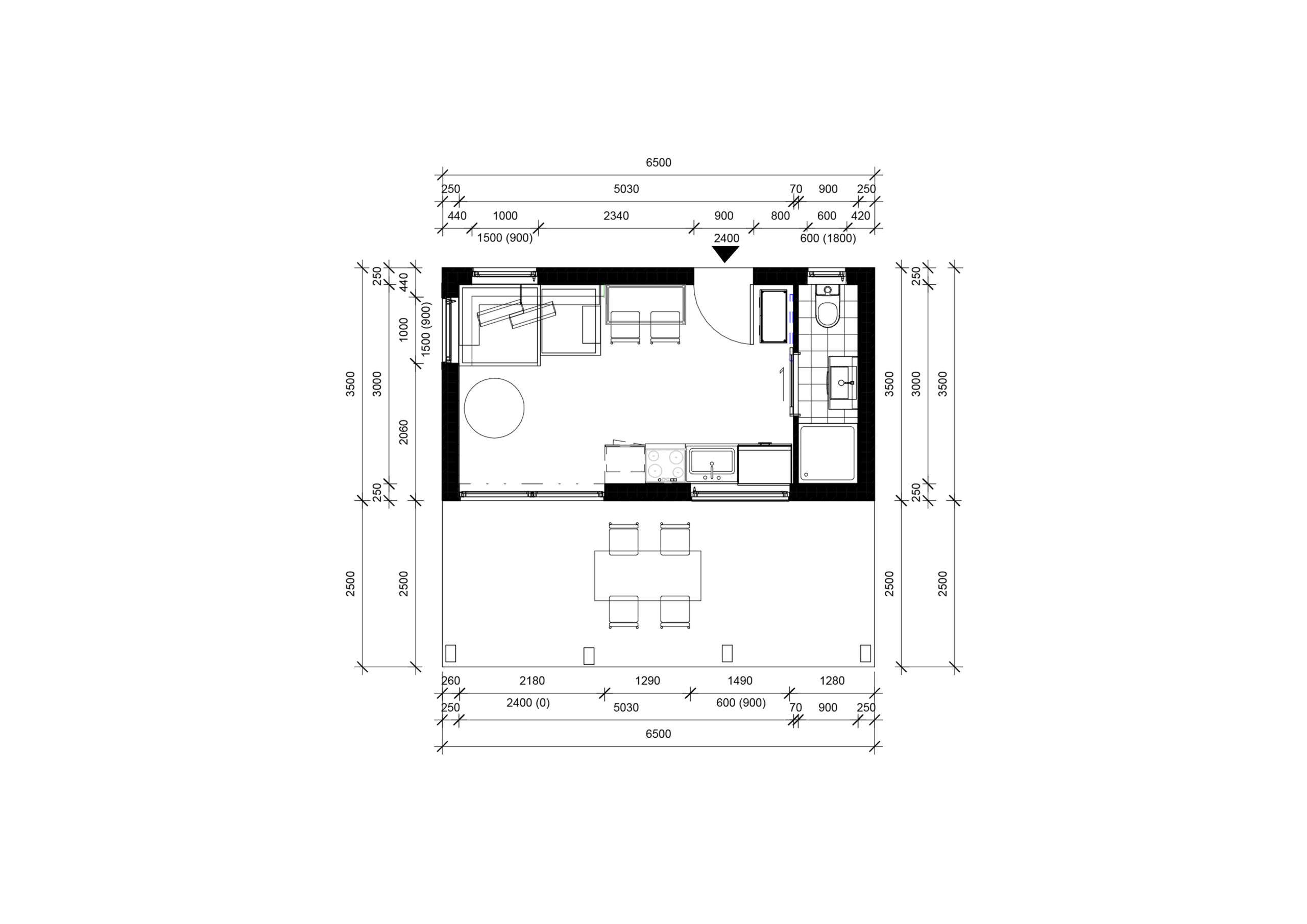
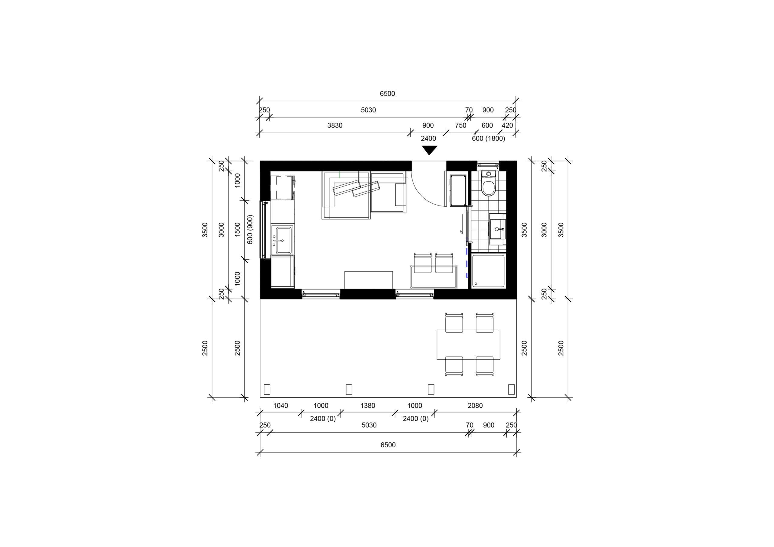
pôdorys

House S 23

Malý modulový dom

Najmenší modulový dom EdileX ponúka necelých 23 m2 zastavanej plochy a 18 m2 obytnej plochy. Najčastejšie zákazníci tento modul využívajú ako víkendový domček, chatu alebo menší domček na prenájom. 

Tak ako všetky moduly EdileX aj tento malý modulový dom je možné vyhotoviť v prevedení kancelárie, domu, chaty či wellness.

House S 23 | | EdileX modulové domy
Zastavaná plocha

22,75 m2

House S 23 | | EdileX modulové domy
Úžitková plocha

18 m2

House S 23 | | EdileX modulové domy
Rozmer modulu

6,5 x 3,5 m

House S 23 | | EdileX modulové domy
Vhodné pre

1-2 osoby

House S 23 | | EdileX modulové domy
Dispozícia

Obývacia izba s kuchyňou, samostatná kúpeľná s WC a sprchovým kútom

Cena: od 22.900,- €

Cena je za holodom vo vyhotovení „classic“ – prečítajte si viac o jednotlivých vyhotoveniach domov a rozdieloch medzi stupňami dokončenia domov.

Malý modulový dom - dostupné vyhotovenia

CLASSIC

základné prevedenie s dôrazom na čo možno najnižšiu cenu pri zachovaní vysokej kvality spracovania

22.900€
za holodom
  • exteriérový obklad z falcovaného plechu vo farbe antracit
  • interiérový obklad z preglejky s priznaným kotvením
  • plávajúce podlahy
  • plastové okná, dvojsklo
  • interiérové dvere z voštiny s obložkovou zárubňou
  • hydroizolácia strechy fóliou Fatrafol so životnosťou 10-15 rokov

STANDARD

ideálny kompromis medzi priaznivou cenou a vylepšeným vzhľadom domu. Najobľúbenejšia varianta našich domov.

27.300€
za holodom
  • exteriérový obklad sibírskym smrekovcom s perom a drážkou bez medzier. Profil "Fase", hrúbka 19 mm
  • interiérový obklad topoľovou preglejkou so skrytým kotvením
  • napínaný biely strop
  • hliníkové okná s izolačným trojsklom
  • vynilové podlahy 5mm, click systém
  • interiérové dvere Hörmann
  • hydroizolácia strechy Sika, životnosť 15-20 rokov
OBĽÚBENÉ

LUXURY

najvyššie prevedenie s prémiovými materiálmi a s dôrazom na dlhú životnosť stavby. Ideálne riešenie pre dlhodobé bývanie.

29.900€
za holodom
  • exteriérový obklad sibírskym smrekovcom, profil Rhombus 26mm s priznanými medzerami a UV stabilnou fóliou
  • interiérový obklad biodoskou 19mm
  • strop obložený biodoskou alebo preglejkou so zafrézovaným LED osvetlením
  • drevené podlahy - dub alebo jaseň
  • drevené eurookná, trojsklo
  • interiérové dvere Hörmann
  • hydroizolácia strechy EPDM fólia, životnosť 50 rokov

Stupeň dokončenia domov

Naše modulové domy si môžete objednať v rôznych stupňoch dokončenia stavby.  Najčastejšie sa jedná o tzv. holodom alebo dom na kľúč.

Pri tomto stupni dokončenia od nás zákazník dostane modulový dom s montážou na pozemku, pričom dom bude obsahovať:

  • exteriér modulu s kompletne zhotovenou fasádou vrátane okien, strechy a povrchovej úpravy
  • vnútorné obloženie stien bez povrchovej úpravy
  • strop
  • namontované vypínače a zásuvky, komplet el. rozvody
  • systém podlahy bez vrchnej vrstvy podlahovej krytiny – dlažby

Zákazník si tak svojpomocne môže dokončiť obklady, dlažby, sanitu, osvetlenie, zásuvky a iné. 

Pokiaľ nechcete mať s ničím starosti, stavbu vám vieme dodať vo vyhotovení dom na kľúč, kde jediné čo k nasťahovaniu potrebujete je nábytok. Dom na kľúč oproti holodomu obsahuje:

  • povrchová úprava stien a stropu (interierový olej)
  • vinylové podlahy
  • interiérové dvere Hörmann 
  • obklady kúpeľne a sanitu
  • svietidlá interiér aj exteriér
  • vykurovanie
  • bojler na ohrev vody

Malý modulový dom - skladba konštrukcie

House S 23 | | EdileX modulové domy

ESB ekologická doska

inštalačný rošt KVH 40*60mm

KVH hranol 60*160mm

drevovláknitá izolácia 160mm

špeciálne pásky proti nežiadúcim zvukom (z oboch strán roštu)

vinylová podlaha lepené 2mm + soklové lišty

plech 0,5mm pozinkovaný (kvôli hlodavcom a škodcom)

ESB ekologická doska

House S 23 | | EdileX modulové domy
Warning: Undefined array key "hotspot_offset_x" in /data/0/d/0dc51a9d-f0d3-4328-8a0f-078c4555226f/edilex.sk/web/wp-content/plugins/elementor-pro/modules/hotspot/widgets/hotspot.php on line 1059

Warning: Trying to access array offset on null in /data/0/d/0dc51a9d-f0d3-4328-8a0f-078c4555226f/edilex.sk/web/wp-content/plugins/elementor-pro/modules/hotspot/widgets/hotspot.php on line 1059

napínaný strop

parobrzdná ekologická membrána na báze papiera

KVH hranol 60*160mm

drevovláknitá izolácia 160mm

ESB doska 15mm + paropriepustná strešná membrána

rošt zo smrekových hranolčekov 40*50mm

plný záklop z ESB dosiek 

geotextília

fatrafol 1,5mm + klampiarske prvky + žlabový systém KJG

House S 23 | | EdileX modulové domy

interiérový olejový náter proti pôsobeniu UV

biodoska 19mm - pohľadová

inštalačný rošt KVH 40*60 mm

parobrzdná ekologická membrána na báze papiera

KVH hranol 60*160 mm

drevovláknitá izolácia 160 mm

ekologická ESB doska 15 mm

UV stabilná parobrzdná membrána

rošt zo sibírskeho smrekovca 30*60 mm

fasádny obklad sibírsky smrekovec + UV stabilný náter

Máte záujem o tento projekt? Kontaktujte nás

V prípade akýchkoľvek otázok nás neváhajte kontaktovať – radi Vám poradíme alebo si rovno dohodneme osobnú konzultáciu.