Projekt Individual
Modulový dom na mieru
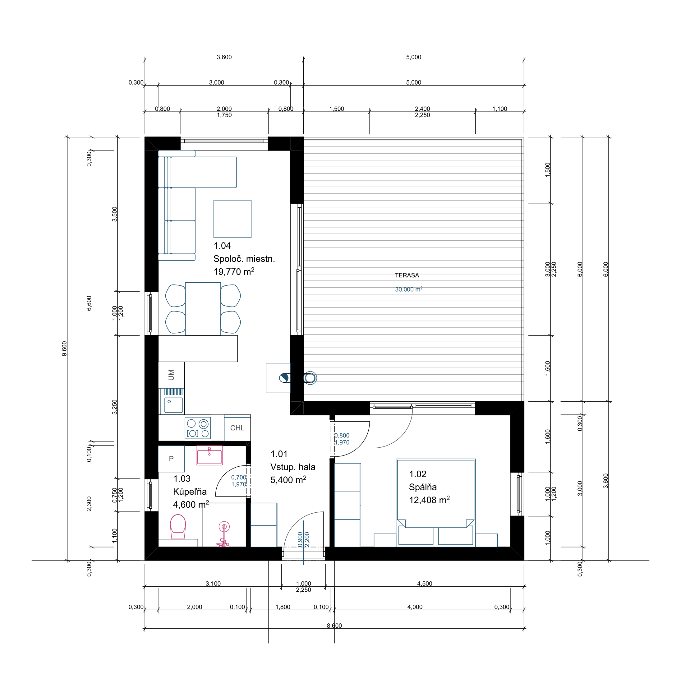
Žiadny z našich projektov modulových domov nespĺňa vaše predstavy na 100%? Presne pre vás je určený projekt individual, v ktorom dokážeme moduly vyskladať do funkčného celku – domu, ktorý bude svojím tvarom, veľkosťou, dispozíciou a ďalšími parametrami vyhovovať aj tým najnáročnejším predstavám.
A to všetko pri zachovaní pozitívnych vlastností modulových domov, ako rýchlosť montáže či proces výroby. Projekt Edilex Individual tak spája slobodu presonalizácie ako pri klasických domoch s benefitmi modulových stavieb.
Tak ako všetky moduly EdileX aj tento je možné vyhotoviť v prevedení kancelárie, domu, chaty či wellness.

na mieru

na mieru

na mieru

na mieru
Dostupné vyhotovenia modulového domu
CLASSIC
základné prevedenie s dôrazom na čo možno najnižšiu cenu pri zachovaní vysokej kvality spracovania
-
exteriérový obklad z falcovaného plechu vo farbe antracit
-
interiérový obklad z preglejky s priznaným kotvením
-
plávajúce podlahy
-
plastové okná, dvojsklo
-
interiérové dvere z voštiny s obložkovou zárubňou
-
hydroizolácia strechy fóliou Fatrafol so životnosťou 10-15 rokov
STANDARD
ideálny kompromis medzi priaznivou cenou a vylepšeným vzhľadom domu. Najobľúbenejšia varianta našich domov.
-
exteriérový obklad sibírskym smrekovcom s perom a drážkou bez medzier. Profil "Fase", hrúbka 19 mm
-
interiérový obklad topoľovou preglejkou so skrytým kotvením
-
napínaný biely strop
-
hliníkové okná s izolačným trojsklom
-
vynilové podlahy 5mm, click systém
-
interiérové dvere Hörmann
-
hydroizolácia strechy Sika, životnosť 15-20 rokov
LUXURY
najvyššie prevedenie s prémiovými materiálmi a s dôrazom na dlhú životnosť stavby. Ideálne riešenie pre dlhodobé bývanie.
-
exteriérový obklad sibírskym smrekovcom, profil Rhombus 26mm s priznanými medzerami a UV stabilnou fóliou
-
interiérový obklad biodoskou 19mm
-
strop obložený biodoskou alebo preglejkou so zafrézovaným LED osvetlením
-
drevené podlahy - dub alebo jaseň
-
drevené eurookná, trojsklo
-
interiérové dvere Hörmann
-
hydroizolácia strechy EPDM fólia, životnosť 50 rokov
Stupeň dokončenia domov
Naše modulové domy si môžete objednať v rôznych stupňoch dokončenia stavby. Najčastejšie sa jedná o tzv. holodom alebo dom na kľúč.
Pri tomto stupni dokončenia od nás zákazník dostane modulový dom s montážou na pozemku, pričom dom bude obsahovať:
- exteriér modulu s kompletne zhotovenou fasádou vrátane okien, strechy a povrchovej úpravy
- vnútorné obloženie stien bez povrchovej úpravy
- strop
- namontované vypínače a zásuvky, komplet el. rozvody
- systém podlahy bez vrchnej vrstvy podlahovej krytiny – dlažby
Zákazník si tak svojpomocne môže dokončiť obklady, dlažby, sanitu, osvetlenie, zásuvky a iné.
Pokiaľ nechcete mať s ničím starosti, stavbu vám vieme dodať vo vyhotovení dom na kľúč, kde jediné čo k nasťahovaniu potrebujete je nábytok. Dom na kľúč oproti holodomu obsahuje:
- povrchová úprava stien a stropu (interierový olej)
- vinylové podlahy
- interiérové dvere Hörmann
- obklady kúpeľne a sanitu
- svietidlá interiér aj exteriér
- vykurovanie
- bojler na ohrev vody
Ku každému modulovému domu v akomkoľvek vyhotovení a stupni dokončenia je možné doobjednať balík Offgrid, ktorý obsahuje:
- toaleta: spaľovacie WC v interiéri namiesto klasického, plnohodnotné používanie bez zápachu a obmedzení (potrebný silnejší systém fotovoltických panelov)
- elektrika: fotovoltický systém s batériami kapacitne postačujúci na prevádzku domčeka (svietenie, TV, nabíjanie mobilu, chladnička)
- voda: plynový bojler, čerpadlo na vodu (potrebný o niečo silnejší systém fotovoltických panelov), zásobník na úžitkovú vodu
- vykurovanie: plynové vykurovanie ovládané pomocou termostatu s možnosťou ovládania na diaľku za príplatok
Skladba konštrukcie
ESB ekologická doska
inštalačný rošt KVH 40*60mm
KVH hranol 60*160mm
drevovláknitá izolácia 160mm
špeciálne pásky proti nežiadúcim zvukom (z oboch strán roštu)
vinylová podlaha lepené 2mm + soklové lišty
plech 0,5mm pozinkovaný (kvôli hlodavcom a škodcom)
ESB ekologická doska

Warning: Undefined array key "hotspot_offset_x" in /data/0/d/0dc51a9d-f0d3-4328-8a0f-078c4555226f/edilex.sk/web/wp-content/plugins/elementor-pro/modules/hotspot/widgets/hotspot.php on line 1059
Warning: Trying to access array offset on null in /data/0/d/0dc51a9d-f0d3-4328-8a0f-078c4555226f/edilex.sk/web/wp-content/plugins/elementor-pro/modules/hotspot/widgets/hotspot.php on line 1059
napínaný strop
parobrzdná ekologická membrána na báze papiera
KVH hranol 60*160mm
drevovláknitá izolácia 160mm
ESB doska 15mm + paropriepustná strešná membrána
rošt zo smrekových hranolčekov 40*50mm
plný záklop z ESB dosiek
geotextília
fatrafol 1,5mm + klampiarske prvky + žlabový systém KJG
interiérový olejový náter proti pôsobeniu UV
biodoska 19mm - pohľadová
inštalačný rošt KVH 40*60 mm
parobrzdná ekologická membrána na báze papiera
KVH hranol 60*160 mm
drevovláknitá izolácia 160 mm
ekologická ESB doska 15 mm
UV stabilná parobrzdná membrána
rošt zo sibírskeho smrekovca 30*60 mm
fasádny obklad sibírsky smrekovec + UV stabilný náter
Máte záujem o tento projekt? Kontaktujte nás
V prípade akýchkoľvek otázok nás neváhajte kontaktovať – radi Vám poradíme alebo si rovno dohodneme osobnú konzultáciu.



